뉴:홈 주요평면
주택 유형 다양화와
디자인 개선
미래 주택 수요 및 생활 패턴의 변화를
고려한 공공주택 유형을 다양화하고,
만의 특별한 주택 평면을
마련할 계획입니다.
01
뉴:홈 주거공간 특화 전 국민의 내집 마련 솔루션! 뉴:홈의 새로운 평면에서 보여드리겠습니다.다양한 고객의 요구대로 Customizing Home

정책 맞춤
연령층, 가구원수, 내 집 마련 시기 등
수요자의 다양한 주거여건을 담을 수 있는
타겟별 맞춤형 포트폴리오 구성
내 집은 내 마음대로 D.I.Y. Home

트랜드 맞춤
입주자 개성과 라이프스타일에 따라
직접 꾸미고 선택할 수 있도록 다양한
공간에 대한 자기결정권 확대
고객감동은 무한대로 Touching Home

감성 맞춤
작지만 마음을 움직이는 감동요소를
발굴하고, 가전수납, 펜트리 수납강화 등
디테일이 살아있는 평면 구현
02
주요 평형별 특징 단순히 평형을 넓히는데 그치지 않고, 가변형 벽체, 넉넉한 수납공간, 빌트인 가전 등입주자의 라이프 스타일을 적극 반영한 주택을 공급할 예정입니다.
-
전용 46㎡
1인가구 등 청년세대의 개성을 담는집, 무기둥 광폭 생활공간, 트랜스폼
#청년1인 #프리미엄 욕실 #스튜디오컨셉
-
전용 55㎡
1인으로 입주해서 결혼, 출산까지 생애주기 변화에 대응, 무기둥 광폭 생활공간, 트랜스폼
#청년1~2인 #프리미엄 욕실 #오픈플랜컨셉
-
전용 59㎡
가족구성원의 변화와 자녀성장에 능동적으로 대응, 트랜스폼
#신혼2~3인 #프리미엄 드레스룸 #건식 세면/화장대 #신혼맞춤컨셉
-
전용 74㎡
거실, 침실, 주방폭을 넓힌 기존 84같은 공간감 제공, 트랜스폼
#일반3~4인 #프리미엄 드레스룸 #건식 세면/화상대 #신표준맞춤컨셉
-
전용 84㎡
온전한 4개 침실, 온전한 발코니, 트랜스폼, 주부관심공간(주방,다이닝,드레스룸) 강화
#다자녀4~5인 #프리미엄 드레스룸 #건식 세면/화상대 #4ROOM컨셉

1청년을 위한 무주 광폭 D.I.Y. 생활공간

2청년층 타켓팅 프리미엄욕실

3럭셔리 Bar형 주방

46㎡ - 기본형

46㎡ - 옵션형
※ 상기 평면은 지구여건 및 시점에 따라 다르게 적용될 수 있습니다.

1독립생활영역 제공

2개인 수납공간

3현관창고


55㎡ - 기본형
55㎡ - 옵션형
※ 상기 평면은 지구여건 및 시점에 따라 다르게 적용될 수 있습니다.

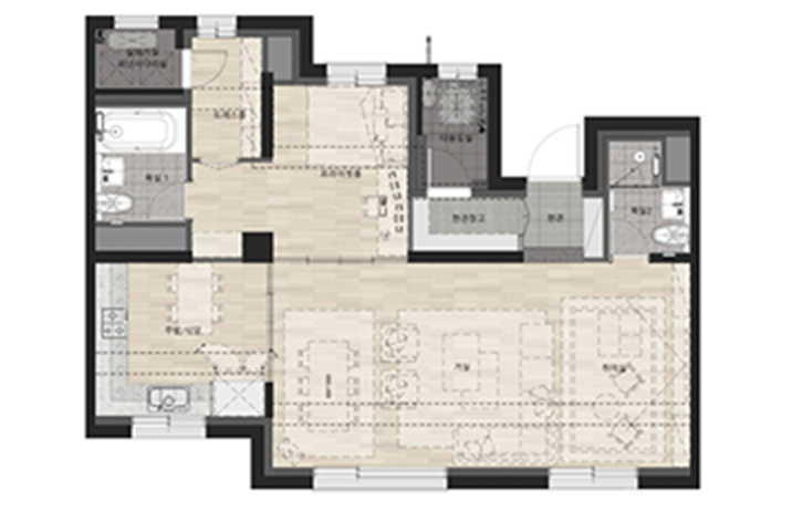
1프리미엄 드레스룸 + 건식세면대

2주부관심공간 강화 광폭다이닝

3온전한 발코니


84㎡ - 기본형
84㎡ - 옵션형
※ 상기 평면은 지구여건 및 시점에 따라 다르게 적용될 수 있습니다.
